●
●
●
●
●
●
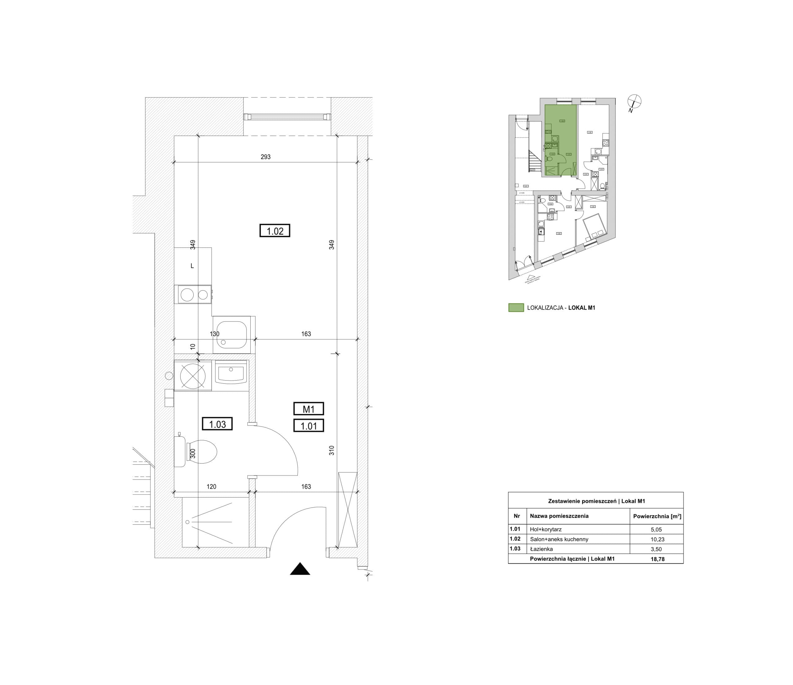
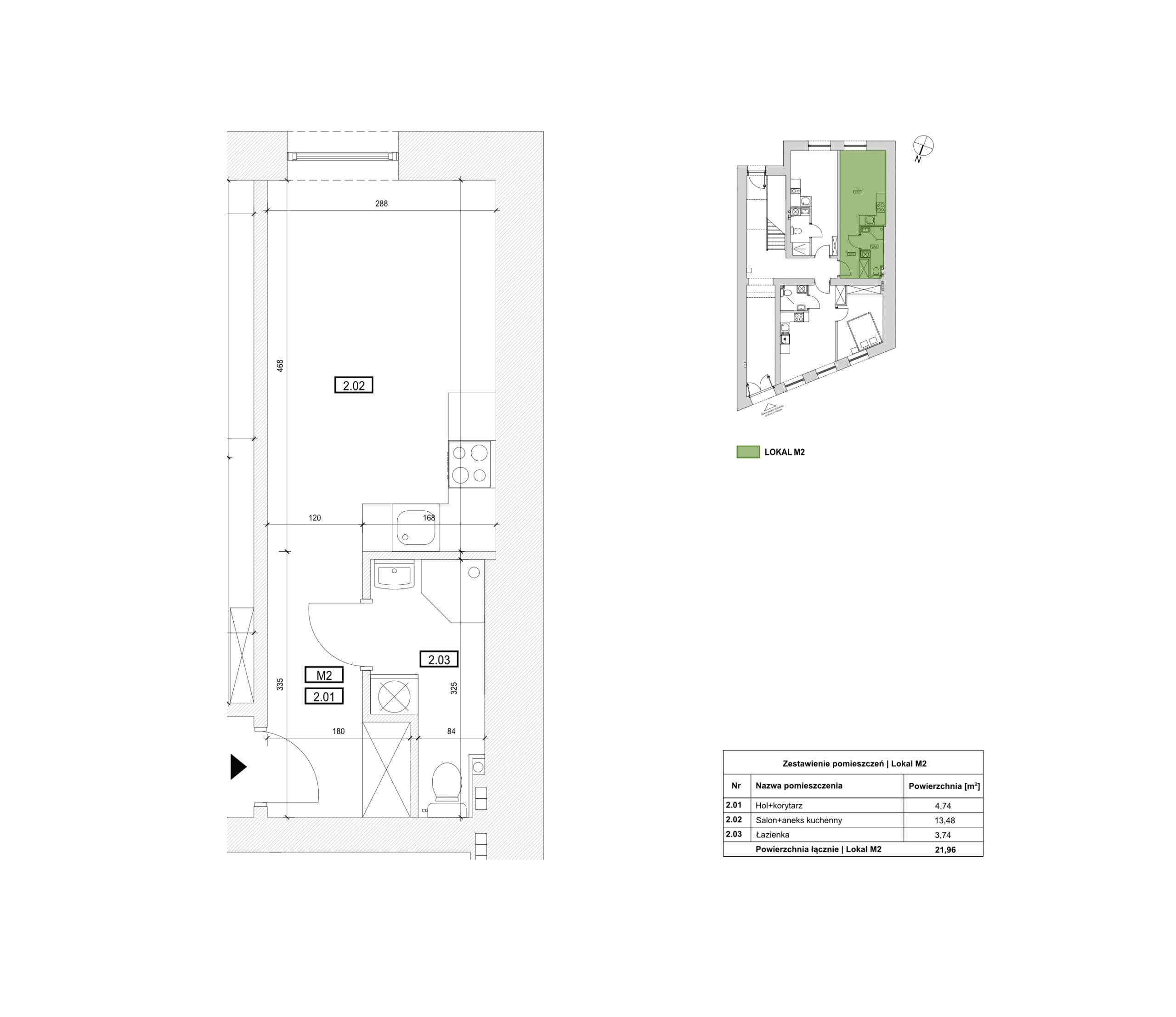
Oferujemy nowocześnie urządzone, po generalnym remoncie mieszkanie, w zrewitalizowanej kamienicy w samym centrum Leszna.
Mieszkanie o powierzchni 21,96 m², na które składa się salon z aneksem kuchennym, łazienka z wc i przedpokój. Mieszkanie znajduje się w kamienicy, która przeszła kapitalny remont. Od podstaw zaprojektowana i wykonana łazienka oraz wyposażona w płytę indukcyjną, lodówkę i okap kuchenny nowoczesna kuchnia. Na wyposażeniu mieszkania znajduje wszystko co widoczne na zdjęciach, poza telewizorem i materacem. Instalacja gazowa wykonana wg najnowszych technologii - piec dwufunkcyjny do centralnego ogrzewania i wody użytkowej. W pierwszej połowie 2026 roku, budynek będzie podnoszony o jedną kondygnację, tym samym zostanie w pełni wykonany nowy dach. Oferta obejmuje sprzedaż mieszkania w stanie "pod klucz" (gotowe do zamieszkania).
W ofercie mamy również bliźniacze mieszkanie o metrażu 18,78 m² (pod numerem 1), które znajduje się na tym samym piętrze. Plany obu mieszkań oraz wizualizacja ogródka dostępne w galerii.
W bliskiej odległości od budynku sklepy, urzędy, szkoły, piekarnie, przystanki i wiele innych. Pełna infrastruktura, dużo zieleni, w sąsiedztwie szkoła muzyczna.
Forma własności nieruchomości – pełna własność.
Budynek będzie zarządzany przez wspólnotę BAZA. Przewidywany czynsz miesięczny to około 150 zł, w którym zawierają się m.in. wywóz śmieci, fundusz remontowy, sprzątanie klatki schodowej, zarządzanie.
Mieszkanie idealnie sprawdzi się jako mieszkanie na start, również jako mieszkanie na wynajem. Zwrot z inwestycji po około 13 latach. W przypadku zakupu mieszkania na cele inwestycyjne oferujemy znalezienie najemcy w cenie transakcji.
Cena 299 000 zł
LEDAR Nieruchomości
Skontaktuj się z naszym ekspertem finansowym w kwestii pozyskania kredytu na zakup tej lub innej nieruchomości - LINK
Zapraszamy do kontaktu.
Ogłoszenie nie stanowi oferty w rozumieniu art. 66 §1 Kodeksu cywilnego.

tel. 889 732 892
Administratorem danych jest Ledar Nieruchomości. Podanie danych jest dobrowolne, ale niezbędne w celu nawiązania kontaktu i przestawienia oferty.